Bureau à louer dans Cluj-napoca, zone Centru
Cluj-Napoca, Centru
Contactez l'agent pour une offre personnalisée ou visitez des offres similaires. Voir des Offres Similaires
Offres similaires
Bureau à louer dans Cluj-napoca, zone Centru
Va prezentam spre inchiriere un spatiu pentru birou, situat in Centru, str. Regele Ferdinand, langa Central. Se afla la etajul 3 intr-un imobil ...
Bureau à louer dans Cluj-napoca, zone Centru
Inchiriere spațiu nemobilat 50 mp pe două nivele (parter + mansarda) două încăperi principale, dotat cu baie și oficiu, cu acces direct din stra...
Bureau à louer dans Cluj-napoca, zone Centru
Chirii Cluj va ofera spre inchiriere un spatiu in zona Centrala, pe strada Horea. Acesta se afla la demisolul imobilului. Spatiul are o supr...
Bureau à louer dans Cluj-napoca, zone Centru
Chirii Cluj inchiriaza spatiu pentru birouri situat pe strada 21 Decembrie 1989, in zona Pietei Unirii si Sora Shopping Center. Cei 60 mp, car...
Bureau à louer dans Cluj-napoca, zone Centru
Spatiul este dispus avand o incapere mare open space, bucatarie/chicineta, hol si grup sanitar, insumand 65mp plus o terasa/balcon. Dispune de c...
Bureau à louer dans Cluj-napoca, zone Centru
Chirii Cluj va prezinta spre inchiriere un spatiu pentru birouri situat intr-o cladire monument istoric, in centrul orasului, zona Regele Ferdina...

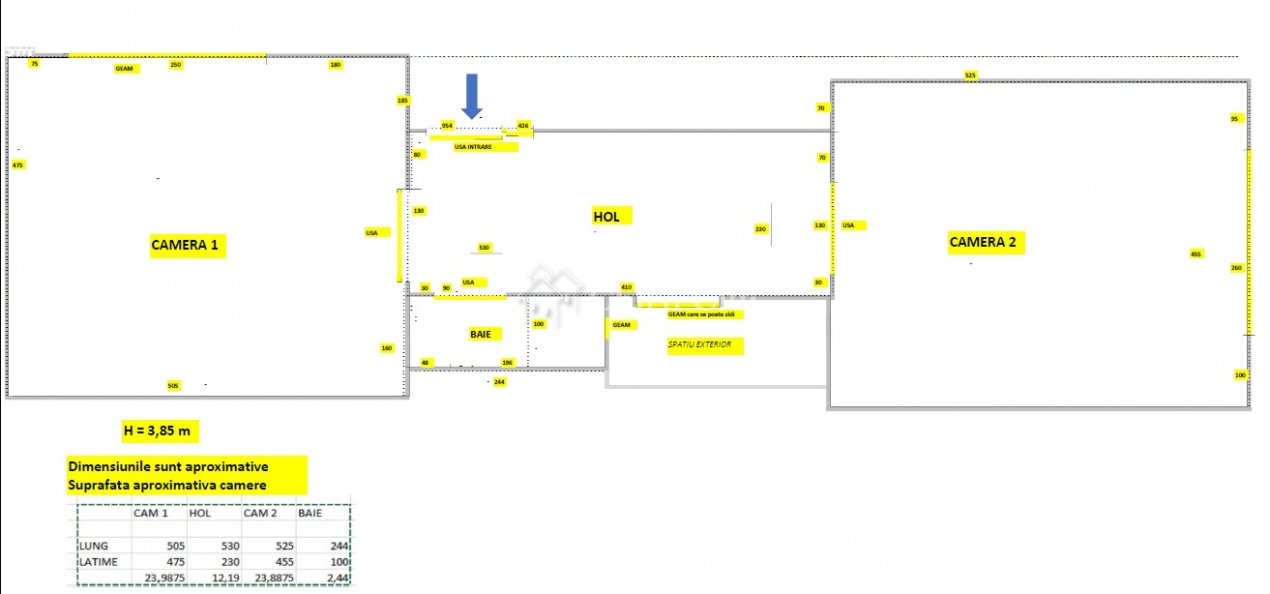
Inchiriere spatiu pentru activitati de birou. Situat in statia regionala CFR, parter inalt cu o incapere spre strada si una spre curte. Suprafata de 62mp utili, impartita in 2 incaperi generoase de cate 24mp fiecare, inaltime 3m85, hol grup sanitar Contorizari separate, sistem de alarma, centrala si calorifere, geamuri termopan.





