Spatiu comercial 100mp, parter la strada, zona piata Cipariu - Il Caffe
Cluj-Napoca, Centru
Contactati agentul pentru o oferta personalizata, sau vizitati ofertele similare. Vezi Oferte Similare
Oferte similare
Inchiriere Spatiu Comercial - Zona Garii - 96 mp + Parcare - bloc 2019
Inchiriere Spatiu Comercial - Zona Garii - 96 mp utili si Parcare - bloc din 2019 Spatiul este situat in zona garii, ideal pentru orice activit...
Spatiu diverse activitati 244mp, inaltime 4.25m, Interservisan
De inchiriat spatiu multifunctional situat in complexul Interservisan Gheorgheni, potrivit pentru activitati medicale, sportive, kineto, etc Eta...
Spatiu comercial, parter 83mp, str. Bucuresti colt str. Fabricii
Inchiriere spatiu comercial 83mp, parter cu expunere foarte buna si vitrina generoasa Situat in statia de autobus de langa interserctia cu str....
Spatiu comercial stradal, 85mp, zona TCI Social str Borhanciului
Spatiu comercial cu destinatie de Alimenatie Publica, situat in cartier Borhanci, la strada principala Suprafata utila 83mp o singura incapere,...
Spatiu comercial de inchiriat, 148mp, compartimentare open-space, zona Manastur
Va propunem spre închiriere un spatiu comercia situat in cartierul Manastur. Este pozitionat la parterul unui bloc nou cu regimul de inaltime S+P...

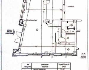
Inchiriere spatiu comercial, situat semicentral langa piata Cipariu si inceputul strazii C-tin Brancusi Parter la strada, expunere comerciala foarte buna. Se compune din sala vanzare si prezentare, 1 birou/oficiu, 1 depozit si grup sanitar.
Mai multe oferte: http://www.weltimobiliare.ro/inchiriere-spatii-comerciale-cluj.html





