Spatiu birouri, Bulevardul 21 decembrie 1989, parcare, 152mp, 5 camere
Cluj-Napoca, Centru
ID: P54172
Pret: 2.000 €/luna
Caracteristici
Tip imobil:
Birou
Suprafata utila:
152.33 m2
Nr. incaperi:
5
Bai:
2
Terase:
--
Nr. parcari:
2
Nr. garaje:
--
Denumire imobil:
--
Clasa birouri:
--
Etaj:
0
Constructie:
--
Anul constructiei:
--
Suprafata construita:
183 m2
Suprafata terase:
--
Suprafata teren:
--
Suprafata curte:
300 m2
Utilitati
Alte detalii zona
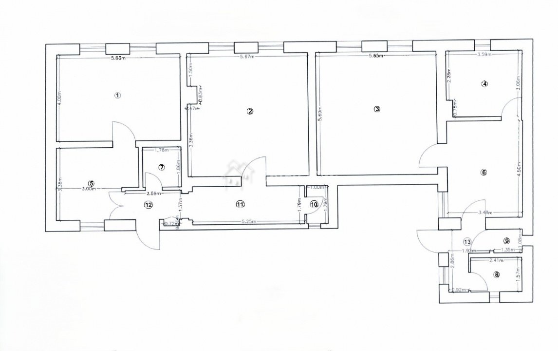
Chirii Cluj va prezinta spre inchiriere un spatiu pentru birouri, intr-o casa alipita cu acces stradal, situata in Centru, zona Regionala CFR. Proprietatea este compusa din 5 incaperi, 2 bai, 1 bucatarie, 2 camari, 2 antreuri si un hol, cu suprafata utila de aproximativ 152mp. Imobilul se afla in curs de renovare exterior-interior si poate fi amenajat dupa cerintele clientului. Contactati-ne pentru informatii suplimentare sau pentru a stabili o vizionare!
Mai multe oferte: http://www.weltimobiliare.ro/inchiriere-spatii-comerciale-cluj.html
Date de contact
Telefon: 0364 644 644
Email: office@chirii-cluj.ro





