Spatiu comercial sau de birouri, imobil nou, zona Hornbach !
Cluj-Napoca, Marasti
Amenajare strazi (Asfaltate), Iluminat stradal, Mijloace de transport in comun
Vecinatati: Kaufland Marasti, Hornbach, Facultatea de Mecanica,
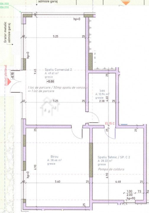
Chirii Cluj va recomanda la inchiriere un spatiu comercial sau de birouri intr-un proiect imobiliar deosebit, situat in cartierul Marasti - zona Bulgaria, la cateva minute de Kaufland sau Hornbach. Spatiile comerciale se vor preda semifinisate, cu geamuri termopan tip vitrina, incalzire in pardoseala si centrala de imobil. Suprafata utila a spatiului este de 127 mp utili, 2 incaperi mari si un sas/grup sanitar. Spatiul are prevazut un loc de parcare exterior acoperit, ce poate fi achizitionat separat. Daca se doreste garaj, pretul unui garaj subteran este de 15.000 euro fara TVA.
Mai multe oferte: http://www.weltimobiliare.ro/inchiriere-spatii-comerciale-cluj.html





