Spatiu de birou sau spatiu comercial in Sannicoara
Sannicoara
ID: P50515
Pret: 1.500 €/luna
Caracteristici
Tip imobil:
Birou
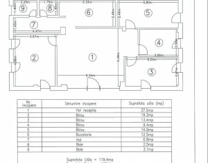
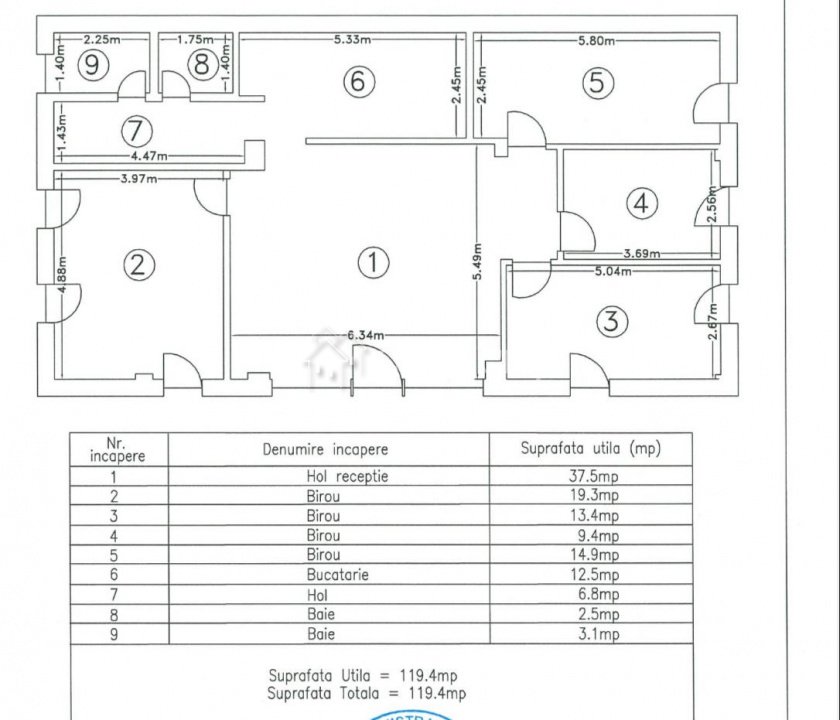
Suprafata utila:
120 m2
Nr. incaperi:
--
Bai:
2
Terase:
--
Nr. parcari:
3
Nr. garaje:
--
Denumire imobil:
--
Clasa birouri:
--
Etaj:
0/4
Regim de inaltime:
4E
Constructie:
Beton
Anul constructiei:
--
Suprafata construita:
140 m2
Suprafata terase:
--
Suprafata teren:
--
Suprafata curte:
--
Utilitati
Alte detalii zona
Se inchireaza spatiu de birou sau spatiu comercial in Sannicoara, la parterul unui bloc nou construit. Acesta este semifinisat momentan, insa se poate finisa la cerere in functie de cerinte. In acte este spatiu comercial, deci se preteaza si pentru activitati comerciale. Avand o suprafata utila de 120 mp, aceta se poate compartimenta oricum. Este perfect pentru birouri, cabinete medicale, showroom si cafenele. Pentru mai multe detalii nu ezitati sa ne contactati.
Mai multe oferte: http://www.weltimobiliare.ro/inchiriere-spatii-comerciale-cluj.html
Date de contact
Telefon: 0364 644 644
Email: office@chirii-cluj.ro





